NOAA TCOON Monitoring Platform Design

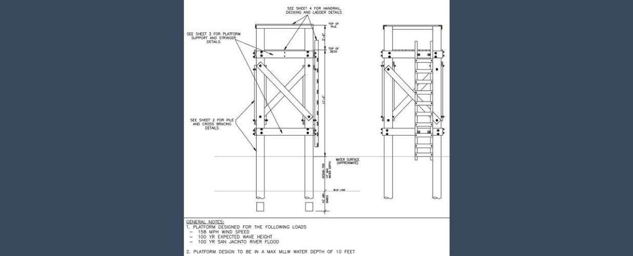
Halff completed the design of a timber-framed flood monitoring platform for the Texas General Land Office (GLO) at the Lynchburg Ferry Landing TCOON station 8770733, where the San Jacinto River meets the Buffalo Bayou and flows into the Houston Ship Channel. The previous structure at this location had been washed out during Hurricane Harvey, and the GLO sought to reinstall its standard platform design with site-specific engineering verification. Halff performed hydrologic and hydraulic analyses to evaluate riverine and coastal flooding conditions, including wave loading parameters and peak hydraulic forces for design storms, in coordination with the GLO. These analyses accounted for both San Jacinto River conditions and coastal storm impacts, including those up to Category 4 hurricane wind speeds.

Using the hydraulic data and the site-specific geotechnical report, Halff completed structural engineering for the platform, analyzing all structural members and determining required pile embedment depths for lateral and vertical loading. The design followed ASCE 7 and USACE wave loading criteria and used the 100-year Atlas 14 storm event for the San Jacinto River. Halff coordinated with the geotechnical engineer as needed and developed the timber specifications for inclusion in the construction package. The project concluded with the delivery of sealed structural plans and timber specifications for the new platform.

These projects were made possible through a grant from the Texas General Land Office (GLO) providing Gulf of Mexico Energy Security Act of 2006 funding made available to the State of Texas and awarded under the Texas Coastal Management Program. The views contained herein are those of the authors and should not be interpreted as representing the view of the GLO or the State of Texas.

Let’s Connect

Ready to work with Halff? Simply fill out the form to be directed to the best person at Halff to discuss your interests.

Contact Us